(Інформація щодо критеріїв доступності дільниць відображена на підставі відомостей наданих органами місцевого самоврядування та виконавчими органами державної влади)
| Параметр | Приміщення дільничної виборчої комісії | Приміщення для голосування |
| Місцезнаходження |
КНП «Васильківська БЛІЛ»ВМР, актова зала, фоє |
КНП «Васильківська БЛІЛ»ВМР, фоє |
| Площа |
110 |
42 |
| Кількість наявних стаціонарних ліній телефонного зв’язку |
1 |
1 |
| Наявність провідного інтернет зв’язку |
 |
 |
| Найменування операторів мобільного зв’язку |
Kyivstar, Vodafone |
Kyivstar, Vodafone |
| Стандарт мобільної передачі даних |
4G |
4G |
| Поверх |
1 |
1 |
| Кількість місць безоплатного паркування біля будівлі для транспортних засобів, якими керують водії з інвалідністю або водії, які перевозять осіб з інвалідністю |
50 |
50 |
| Мінімальна відстань (м) від входу в будівлю до місць безоплатного паркування транспортних засобів, якими керують водії з інвалідністю або водії, які перевозять осіб з інвалідністю |
10 |
10 |
| Загальна кількість місць на відкритих індивідуальних автостоянках біля будівлі з позначенням таких місць відповідними дорожніми знаками або дорожньою розміткою з піктограмами міжнародного символу доступності до Правил дорожнього руху |
15 |
15 |
| Кількість місць на відкритих індивідуальних автостоянках для транспортних засобів, якими керують водії з інвалідністю або водії, які перевозять осіб з інвалідністю |
15 |
15 |
| Відповідність державним стандартам та державним будівельним нормам шляхів руху до будівлі для осіб з інвалідністю та інших маломобільних груп населення |
 |
 |
| Відповідність державним стандартам та державним будівельним нормам шляхів руху всередині будівлі для осіб з інвалідністю та інших маломобільних груп населення |
 |
 |
| Обладнання засобами орієнтування та інформаційної підтримки шляхів руху до будівлі для осіб з інвалідністю та інших маломобільних груп населення |
 |
 |
| Обладнання засобами орієнтування та інформаційної підтримки шляхів руху всередині будівлі для осіб з інвалідністю та інших маломобільних груп населення |
 |
 |
| Оснащення шляхів руху, вхідних вузлів до будівлі засобами орієнтування та інформування для осіб з порушенням зору з урахуванням державних стандартів |
 |
 |
| Оснащення шляхів руху до приміщень ВД засобами орієнтування та інформування для осіб з порушенням зору з урахуванням державних стандартів |
 |
 |
| Оснащення шляхів руху, вхідних вузлів до будівлі засобами орієнтування та інформування для осіб з порушенням слуху з урахуванням державних стандартів |
 |
 |
| Оснащення шляхів руху до приміщень ВД засобами орієнтування та інформування для осіб з порушенням слуху з урахуванням державних стандартів |
 |
 |
| Відповідність покриття пішохідних доріжок, тротуарів і пандусів потребам осіб, що пересуваються на кріслах колісних або з милицями |
 |
 |
| Відсутність перешкод у вигляді бордюрів, рівень яких не збігається з рівнем покриття |
 |
 |
| Ширина пішохідних доріжок із зустрічним рухом не менш як 1,8 м |
 |
 |
| Ширина входу, дверей, хвірток не менш як 0,9 м |
 |
 |
| Наявність сходів на шляху до будівлі |
 |
 |
| Наявність сходів на вході в будівлю |
 |
 |
| Наявність сходів всередині будівлі на шляху до приміщень ВД |
 |
 |
| Наявність пандуса, що дублює сходи |
 |
 |
| Наявність контрастного маркування ребер першої та останньої сходинок |
 |
 |
| Відповідність облаштування пандусів ДБН "Інклюзивність будівель і споруд" |
 |
 |
| Наявність піднімальних пристроїв, пристосованих для потреб осіб з інвалідністю та інших маломобільних груп |
 |
 |
| Наявність позначень місця розташування пандуса (-ів) |
 |
 |
| Відповідність вимогам санітарних і технічних норм |
 |
 |
| Відповідність державним будівельним нормам |
 |
 |
| Кількість кімнат |
2 |
|
| Площа додаткової кімнати |
68 |
|
| Придатність приміщення для зберігання виборчих бюлетенів |
 |
- |
| Розміщення обладнання у спосіб, який забезпечуватиме належну організацію роботи ДВК |
 |
 |
| Забезпечення засобами безперебійного електропостачання |
 |
 |
| Забезпечення засобами протипожежної безпеки |
 |
 |
| Забезпечення можливості охорони виборчих бюлетенів та іншої виборчої документації |
 |
- |
| Ширина дверних отворів та відкритих отворів у стінах не менш ніж 0,9 м. Відсутність порогів і перепадів висоти підлоги |
 |
 |
| Наявність турнікету на шляху руху до приміщень |
 |
 |
| Відсутність предметів перепон (бордюри, пороги, тощо) на шляхах руху виборців та членів ДВК у приміщеннях ВД |
 |
 |
| Наявність туалетів загального користування |
 |
 |
| Наявність санітарно-гігієнічних приміщень для осіб з інвалідністю та інших маломобільних груп населення |
 |
 |
| Наявність позначень місця розташування санітарно-гігієнічного приміщення, доступного для осіб з інвалідністю та інших маломобільних груп населення |
 |
 |
| Наявність у туалетах загального користування універсальних кабін, пристосованих для заїзду та переміщення в них осіб у кріслах колісних |
 |
 |
| Наявність штучного освітлення відповідно до санітарних норм, державних стандартів та державних будівельних норм |
 |
 |
| Наявність на вході/виході до/з будівлі в доступних форматах план-схеми, що сприяє самостійній навігації на об’єкті |
 |
 |
| Наявність позначень напрямку руху до евакуаційних шляхів та виходів, доступних для осіб з інвалідністю та інших маломобільних груп населення |
 |
 |
| Наявність позначень доступних і безпечних напрямків руху для осіб з інвалідністю та інших маломобільних груп населення |
 |
 |
| Наявність кабіни для голосування, пристосованої для осіб з інвалідністю та інших маломобільних груп населення |
- |
 |
| Наявність позначень місця розташування кабіни, пристосованої для осіб з інвалідністю та інших маломобільних груп населення |
- |
 |
| Відсоток відповідності дільниці до критеріїв доступності для виборців з порушенням зору |
|
86 |
| Відсоток відповідності дільниці до критеріїв доступності для виборців з порушенням слуху |
|
67 |
| Відсоток відповідності дільниці до критеріїв доступності для виборців, які користуються кріслом колісним |
|
82 |
| Відсоток відповідності дільниці до критеріїв доступності для маломобільних груп населення |
|
85 |
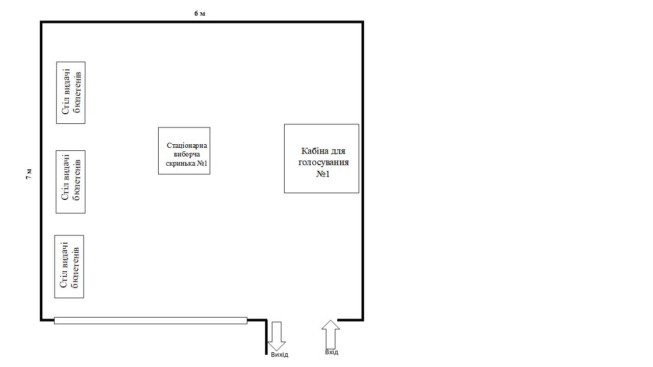
| План-схема приміщення для голосування |
|
|